50 Manitoba Street E Moose Jaw, Saskatchewan S6H 0A2
$425,000
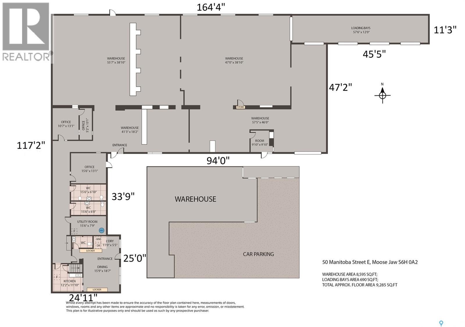
Welcome to an exceptional opportunity in downtown Moose Jaw! This expansive commercial warehouse boasts nearly 9,000 sq ft, providing a versatile space for your business needs. Conveniently located with easy access to the #1 highway, visibility is maximized for your enterprise. Featuring two offices, three bathrooms, a locker room, and a well-equipped kitchen space, this warehouse is designed to meet your operational requirements seamlessly. The practical layout includes three 9' overhead doors, perfectly suited for hauling trucks or semis, along with an additional 10' overhead door at the front of the building. Ample parking right in front ensures convenience for both staff and clients. Don't miss out on this prime location that combines functionality, accessibility, and prominence for your business success! ***Some photos were taken during former tenant occupancy. Property is now vacant.*** (id:62463)
Business
| Business Type | Industrial |
| Business Sub Type | Warehouse |
Property Details
| MLS® Number | SK033648 |
| Property Type | Industrial |
| Neigbourhood | Central MJ |
Building
| Constructed Date | 1994 |
| Construction Style Other | Distribution |
| Heating Type | Furnace |
| Size Exterior | 8845 Sqft |
| Size Interior | 8,845 Ft2 |
| Type | Warehouse |
Land
| Acreage | No |
| Size Irregular | 0.47 |
| Size Total | 0.47 Ac |
| Size Total Text | 0.47 Ac |
https://www.realtor.ca/real-estate/29640452/50-manitoba-street-e-moose-jaw-central-mj
Contact Us
Contact us for more information
Teresa Thompson
Salesperson
www.teresathompsonrealty.com/
www.facebook.com/teresathompsonrealestateagent
www.instagram.com/teresathompsonrealtor/
150-361 Main Street North
Moose Jaw, Saskatchewan S6H 0W2
(306) 988-0080
(306) 988-0682
globaldirectrealty.com/
Obadiah (O) Thompson
Salesperson
150-361 Main Street North
Moose Jaw, Saskatchewan S6H 0W2
(306) 988-0080
(306) 988-0682
globaldirectrealty.com/






























