492 Woolf Bend Saskatoon, Saskatchewan S7W 1E4
$674,900
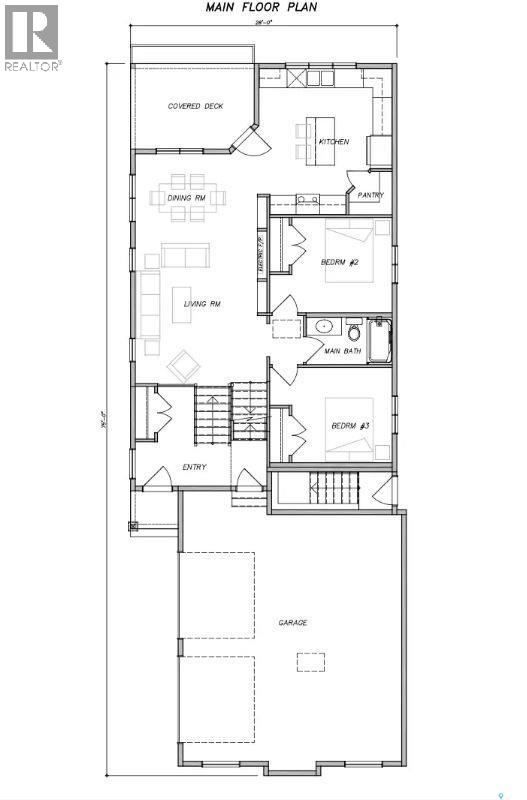
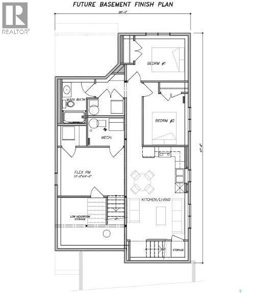
Welcome to 492 Woolf Bend in Aspen Ridge—an impressive 1,558 sq. ft. modified bi-level designed with space, style, and versatility in mind. This thoughtfully laid-out home offers the added potential for a legal two-bedroom suite, making it an excellent opportunity for homeowners and investors alike. The main floor features a bright and spacious living room complete with an electric fireplace, creating a warm and inviting atmosphere. The dining area overlooks the backyard and flows seamlessly into the kitchen, which is tucked away for added privacy and functionality. Here you’ll find an eat-up island, stainless steel appliances, and a window above the sink that brings in natural light. Two generously sized bedrooms and a full 4-piece bathroom complete the main level. Upstairs, retreat to your private primary suite, featuring a large walk-in closet and a luxurious ensuite with a tub/shower, double vanity, and convenient linen shelving. The basement is designed for flexibility, offering a finished family room along with a laundry area and mechanical room. For those looking to maximize value, the optional legal suite includes its own separate entrance, laundry, and independent living space. Outside, the oversized 26x24 garage provides ample room for parking, storage, and a workspace. Enjoy the covered back deck, finished driveway, and front landscaping—all adding to the home’s curb appeal and everyday convenience. There is still time to choose your paint color and flooring. A fantastic opportunity to own a stylish, functional home in one of Saskatoon’s most desirable neighbourhoods. (id:62463)
Property Details
| MLS® Number | SK034052 |
| Property Type | Single Family |
| Neigbourhood | Aspen Ridge |
| Features | Corner Site, Rectangular, Double Width Or More Driveway, Sump Pump |
| Structure | Deck |
Building
| Bathroom Total | 2 |
| Bedrooms Total | 3 |
| Appliances | Washer, Refrigerator, Dishwasher, Dryer, Microwave, Garage Door Opener Remote(s), Stove |
| Architectural Style | Bi-level |
| Basement Development | Finished |
| Basement Type | Full (finished) |
| Constructed Date | 2026 |
| Construction Style Attachment | Detached |
| Fireplace Fuel | Electric |
| Fireplace Present | Yes |
| Fireplace Type | Conventional |
| Heating Fuel | Natural Gas |
| Heating Type | Forced Air |
| Size Interior | 1,558 Ft2 |
| Type | House |
Parking
| Attached Garage | |
| Parking Space(s) | 4 |
Land
| Acreage | No |
| Landscape Features | Lawn |
| Size Irregular | 4802.00 |
| Size Total | 4802 Sqft |
| Size Total Text | 4802 Sqft |
Rooms
| Level | Type | Length | Width | Dimensions |
|---|---|---|---|---|
| Second Level | Primary Bedroom | 14'6 x 16'6 | ||
| Second Level | 5pc Ensuite Bath | - x - | ||
| Basement | Family Room | 14'4 x 10'8 | ||
| Basement | Laundry Room | - x - | ||
| Basement | Other | - x - | ||
| Main Level | Foyer | 5' x 5' | ||
| Main Level | Living Room | 10'6 x 13'4 | ||
| Main Level | Dining Room | 13'4 x 11'8 | ||
| Main Level | Kitchen | 13'4 x 15'11 | ||
| Main Level | Bedroom | 11'4 x 13'8 | ||
| Main Level | Bedroom | 9'10 x 11'4 | ||
| Main Level | 4pc Bathroom | - x - |
https://www.realtor.ca/real-estate/29667040/492-woolf-bend-saskatoon-aspen-ridge
Contact Us
Contact us for more information
Heather Fritz
Salesperson
www.heatherfritz.com/
714 Duchess Street
Saskatoon, Saskatchewan S7K 0R3
(306) 653-2213
(888) 623-6153
boyesgrouprealty.com/







